площадью 112,00 м2, по цене 107861 по адресу Солнечногорская - 5 корпус 1

Цена 107 861 р.
Район Головинский
Адрес Солнечногорская, 5 корпус 1
Площадь помещения 112 м2
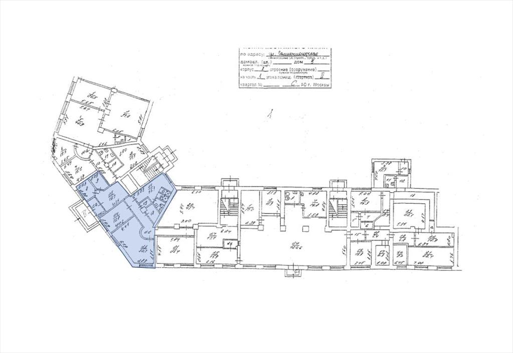
Сбер А предлагает к аренде часть нежилого помещения площадью площадью 112,4 кв.м., расположенного по адресу: город Москва, вн.тер.г. муниципальный округ Головинский, улица Солнечногорская, дом 5, корпус 1, помещение 2/1. Аренда посредством проведения торгов на электронной площадке Сбербанк-АСТ. Номер процедуры: SBR065-2506040004 Ссылка на торги: https://utp.sberbank-ast.ru/Property/NBT/PurchaseV iew/43/0/0/3136779 Собственник: Московский банк ПАО Сбербанк О лоте: Часть нежилого помещения площадью112,4 кв.м Этаж: 1 Кадастровый номер: 77:09:0001015:3896 Срок аренды: 5 лет Особые условия: На Объекте была произведена перепланировка, не согласованная в установленном законом порядке. После подписания Договора аренды Арендатор обязуется сдать часть площади второму арендатору (не более 14 кв. м) для организации отдельного входа по ставке, не превышающей текущую. Дополнительная информация, документы и условия реализации указаны на площадке в разделе «Документы». По всем вопросам, связанным с лотом, обращайтесь в рабочее время по телефону с 09:00 до 18:00 по МСК
Объявление № 23129533
Дата подачи:
3 августа 2025 г. 5:12
Дата обновления:
3 августа 2025 г. 4:00
Просмотров 8 Хотите продать быстрее?

Продавец
Яна СБЕРБАНК АСТ
Показать номер телефона
Пожаловаться
Комментарии:
Добавить